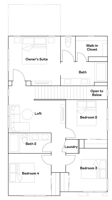
NEW CONSTRUCTION! This new two-story home offers ample space to live and grow. An open-concept floorplan on the first level blends the kitchen, living and dining areas for easy transitions and multitasking. All four bedrooms are located on the second floor, including the lavish owner’s suite with a full bathroom and walk-in closet, just steps from a versatile and inviting loft. Luxe offers new single-family homes for sale at the Nuvo Parkside masterplan, now selling i in Ontario, CA. Residents will enjoy onsite amenities, including a clubhouse, BBQ area and gated access points. A future Great Park and Sports Arena are planned to be built near the community, offering endless entertainment opportunities. Enjoy an array of shopping and dining options at nearby Ontario Mills Mall, or catch a live concert at the Toyota Arena. Easily plan trips or vacations with convenient proximity to the Ontario Airport.
MLS #
CRSW26054847
MLS Source
California Regional MLS
Days on Site
0
Bedrooms
Primary Suite/Retreat, Other
Appliances
Dishwasher, Garbage Disposal, Microwave, Other, Oven Range - Built-In, Oven Range - Electric
Dining Room
Breakfast Bar, Formal Dining Room
Fireplace
None
Laundry
In Laundry Room, Other, Upper Floor
Cooling
Central Forced Air
Heating
Central Forced Air
Roof
Tile
Foundation
Slab
Pool
Community Facility, In Ground, Spa - Community Facility
Garage/Parking
Garage, Garage: 2 Car(s)
HOA Fee
$197
HOA Fee Frequency
Monthly
Complex Amenities
Barbecue Area, Club House, Community Pool, Picnic Area, Playground
Listing Agent
Todd Myatt
Century 21 Masters
License #: 01395249
Phone: –
Co-Listing Agent
Karen Myatt
Century 21 Masters
License #: 01048979
Phone: –
4463 S Patterson Paseo is a Condominium in Ontario, CA 91762. This 1,648 square foot property sits on a – Sq Ft Lot and features 4 bedrooms & 2 full and 1 partial bathrooms. It is currently priced at $672,495 and was built in 2026. This address can also be written as 4463 S Patterson Paseo, Ontario, CA 91762.
©2026 California Regional MLS. All rights reserved. All data, including all measurements and calculations of area, is obtained from various sources and has not been, and will not be, verified by broker or MLS. All information should be independently reviewed and verified for accuracy. Properties may or may not be listed by the office/agent presenting the information. Information provided is for personal, non-commercial use by the viewer and may not be redistributed without explicit authorization from California Regional MLS.
Presently MLSListings.com displays Active, Contingent, Pending, and Recently Sold listings. Recently Sold listings are properties which were sold within the last three years. After that period listings are no longer displayed in MLSListings.com. Pending listings are properties under contract and no longer available for sale. Contingent listings are properties where there is an accepted offer, and seller may be seeking back-up offers. Active listings are available for sale.
This listing information is up-to-date as of March 12, 2026. For the most current information, please contact Todd Myatt