Exceptional “A-Frame” Mountain Retreat | Arrowbear Lake Experience the ultimate in mountain privacy and modern design with this stunningly remodeled “A Frame” cabin, perfectly situated in one of Arrowbear’s most secluded locations. Tucked at the end of a private, gated cul-de-sac and backing directly to U.S. Forestry land, this rare property offers unmatched serenity and breathtaking natural surroundings—with virtually no neighbors on either side. First time on the market in decades and family-owned since 1977, this distinctive cabin has undergone a comprehensive, high-quality renovation over the past four years—over $90,000 in upgrades completed between August 2021 and March 2025. Property Highlights Premium Double Lot – Includes two parcels (APN: 0328-157-36-0 000 & 0328-157-37-0-000), making this one of the largest and most desirable properties in Arrowbear Lake. Expansive Outdoor Living – New TREX weather resistant front porch and rear balcony (installed March 2025), offering sweeping forest views and year-round durability against snow and rain. Prime Location. Only 4 miles from Snow Valley Ski Resort, ideal for winter sports enthusiasts or anyone seeking crisp, clean mountain air and year-round recreation. Remodel details (2021–2025) – New Hardie Plank fire- and water-resist
MLS #
CRSR25278942
MLS Source
California Regional MLS
Days on Site
0
Bedrooms
Ground Floor Bedroom
Appliances
Microwave, Oven - Electric, Oven Range - Electric
Dining Room
Other
Fireplace
Living Room, Wood Burning
Flooring
Laminate, Other
Laundry
None
Cooling
None
Heating
Electric, Stove - Wood
Roof
Other, Shingle
Foundation
Raised
Pool
None
Style
Other
Garage/Parking
Other, Garage: 0 Car(s)
Elementary District
Rim of the World Unified
High School District
Rim of the World Unified
Water
Other
HOA Fee
$0
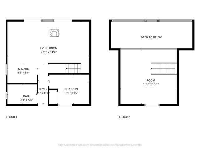
32703 Tulip Lane is a Single Family Residence in Arrowbear, CA 92382. This 704 square foot property sits on a 3,000 Sq Ft Lot and features 2 bedrooms & 1 full bathrooms. It is currently priced at $335,000 and was built in 1970. This address can also be written as 32703 Tulip Lane, Arrowbear, CA 92382.
©2025 California Regional MLS. All rights reserved. All data, including all measurements and calculations of area, is obtained from various sources and has not been, and will not be, verified by broker or MLS. All information should be independently reviewed and verified for accuracy. Properties may or may not be listed by the office/agent presenting the information. Information provided is for personal, non-commercial use by the viewer and may not be redistributed without explicit authorization from California Regional MLS.
Presently MLSListings.com displays Active, Contingent, Pending, and Recently Sold listings. Recently Sold listings are properties which were sold within the last three years. After that period listings are no longer displayed in MLSListings.com. Pending listings are properties under contract and no longer available for sale. Contingent listings are properties where there is an accepted offer, and seller may be seeking back-up offers. Active listings are available for sale.
This listing information is up-to-date as of December 20, 2025. For the most current information, please contact Joann Meinardus